山形県初のPark-PFI事業が始動
PR

クリエイト礼文(山形県山形市、代表取締役CEO 大場友和)(以下、「当社」といいます。)では住宅だけでなく、地域の魅力を引き出し新たな価値を創造する「地方創生事業」を展開しており、山形市による「公募設置管理制度(Park-PFI)」の導入に伴い、県内で初となるPark-PFI事業を山形駅前公園にて開始いたしました。
本事業は、民間資金とノウハウを活用し、都市公園の新たな価値創出と地域活性化を目指す官民連携の取り組みであり、山形市が実施した公募型プロポーザルにおいて、当社が事業者として選定されたものです。
当社は公園内に「カフェ&ダイニングバー」の建設を進めており、建物完成が2025年4月中旬、グランドオープンは6月以降を予定しております。
目次
1. 背景・経緯
当社では「住まい」から地域活性化へ繋がる事業を展開しており、市町村と連携を取りながら地方創生に向けた事業展開を行い、山形県舟形町と東北農林専門職大学生等向けアパートの運営等に関する連携協定など事業を展開してきました。今回の新プロジェクトは山形市が公園のさらなる魅力向上を目的に「Park-PFI制度」を活用し、事業提案を公募。当社は地域の特性を活かしたカフェ&ダイニングバーの運営計画を提案し、選定されました。
PFI(Private Finance Initiative)とは?
Park-PFI(公募設置管理制度)は、公園内に収益施設(カフェやレストランなど)を設置・運営する民間事業者が、同時に園内施設の整備・維持管理を担うことで、行政コストを抑えつつ公共空間の充実を図る制度です。
全国的に導入が進む中、山形市では今回が初で、山形県内でも初の事例となります。
本事業は、当社が カフェ&ダイニングバーの設計・建設をし、第三者が運営をします。
2. 施設の特徴
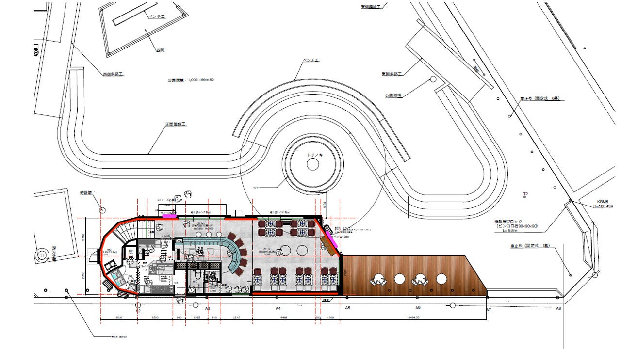
本事業では、山形駅北東に位置する「駅前公園」において、民間施設の設計・建設・管理運営を行い、地域のにぎわいと交流拠点の創出を目指します。飲食機能を核とした施設は、公園環境と調和した設計とし、幅広い世代が集える空間づくりを推進していきます。
公園内に新しく建設した建物はカフェ&ダイニングバーとして、以下の 4つの要素を軸に運営します。
カフェ営業(昼間)
こだわりのコーヒーや、地元食材を使った軽食を提供し、朝から午後にかけて多くの人が気軽に立ち寄れる空間を創出します。
ダイニング&バー営業(夜間)
17時以降はダイニングバーとして営業し、おしゃれな雰囲気の中で、美味しい料理やお酒を楽しめます。
仕事帰りの方々や観光客が気軽に集まれる場を提供します。
地域の特産品を活かしたメニュー開発
山形の特産食材を取り入れたオリジナルメニューを展開し、県内外の方々に新たな食の魅力を発信します。
ネット販売の活用
店舗で提供するオリジナル商品をECサイトで販売し、山形の魅力を全国へ届けます。
3. 事業の目的
公共空間の魅力向上と利活用促進
公園空間に民間のアイデアと資源を取り入れることで、従来の「通り抜ける場所」から「滞在したくなる場所」へと転換を図ります。訪れる人が自然と集い、快適に過ごせる空間設計を通じて、公園の利用価値を高めます。
地域特産品の発信と地場産業支援
山形ならではの農産物や加工品を活かした商品開発や提供を通じて、地元生産者との連携を強化します。観光客や来訪者に向けて地域の魅力を伝え、産地としての認知拡大や販路開拓にも貢献します。
多世代・多目的な交流の場の創出
カフェやダイニングなどの飲食スペースを軸に、世代や立場を超えた交流が自然に生まれる場を提供します。日中は子育て世代や高齢者、夕方以降はビジネスパーソンや観光客が集うなど、時間帯に応じた多様な利用を促進します。
観光・ビジネス両面に対応する都市機能の強化
山形駅前という高い利便性を活かし、観光・仕事・生活の動線が交差する場として都市の機能性を高めます。公園と民間施設が連携することで、滞在時間の延長や地域内経済の循環を促し、中心市街地の活性化につなげます。
4. 施設の概要
■建物の特徴
1階建てのシンプル&洗練されたデザイン
屋上をテラスとしても利用予定
ホール面積:63.06㎡(38.2帖)
厨房スペース:16.79㎡(10.2帖)
カフェ&ダイニングバーとして、快適な空間を提供
公園内にはシンボルツリー、ベンチ等があるため、一体となって使えるように計画
※記載面積は計画時の数値のため、完成時と異なります

■立地の魅力
駅前公園は山形駅の北東側 に位置し、アクセス抜群
駅前の仙台行きバス乗り場から視認できる位置関係
駅周辺の商業エリアとの相乗効果を生み出すロケーション
施設の名称
(仮)KASUMI TERRACE (カスミテラス)





5. スケジュール
- 着工: 2024年11月
- 上棟: 2025年1月中旬
- 完成: 2025年4月中旬
- プレオープン:2025年5月中旬
- グランドオープン:2025年6月以降(未定)
6. クリエイト礼文のビジョンと今後の展望
クリエイト礼文は 「まちづくりに貢献する企業」 として、住宅だけでなく、地域の魅力を引き出し、新たな価値を創造 する取り組みを推進しています。
このプロジェクトを通じて、「人が集い、地域が発展する場」を築き、山形の未来を支える一端を担ってまいります。
本プロジェクトは、カフェ&ダイニングバーを拠点に、地域の新たな賑わいを生み出す挑戦です。
山形市駅前公園が「地域住民・観光客・ビジネスパーソン」の交流拠点となるよう、
クリエイト礼文は全力で取り組んでまいります。
▷カフェ&ダイニングバー(パークPFI事業)のプロジェクトページはこちら
- 株式会社クリエイト礼文
- 代表者:代表取締役 CEO ⼤場友和
- 本社:⼭形県⼭形市南原町⼆丁⽬7-39
- ホームページURL:(クリエイト礼⽂)https://createlemon.jp/ (ユニテハウス)https://unitehouse.jp/
- TEL : 023-631-5771(代) FAX : 023-631-5416
本件に関する報道関係者からのお問合せ先
広報担当:柳橋純一
E-mail:pr@unitehouse.jp
人気記事
人気・おすすめタグ
関連記事

海外旅行保険付きクレジットカードおすすめ10選を比較!自動付帯・年会費無料もあり!

ANA JCB・ソラチカカードの入会キャンペーン最新情報!期間限定で入会するとボーナスマイルプレゼント

ダイナースクラブカードのメリット・デメリットを一覧で紹介!ラウンジの使用方法やどんな人におすすめかを解説

たびほ海外旅行保険の口コミからわかるメリット・デメリットを解説!補償内容やプラン比較まで

三井住友海上の海外旅行保険の口コミ!メリット・デメリットや補償内容、申し込み方法を解説

オランダのワーホリ完全ガイド【2025年最新】ビザ申請方法や仕事の探し方、必要費用などについて解説

韓国のワーホリに落ちる理由は?年齢やビザ申請方法、必要書類、語学学校などについて解説

デビットカードは海外で使えない?おすすめしないって本当?デメリット、メリットやクレカとの比較

【2025年】アムステルダムのおすすめ観光スポット特集!定番から歴史や自然を堪能できるスポットまで網羅

スマ留の海外旅行保険の口コミを調査!メリット・デメリットや申し込み方法まで解説

ワーホリに行くなら選びたいおすすめの国|後悔しない国の選び方とビザ情報を徹底解説

ワーホリに最適なクレジットカードと選び方の完全ガイド【2025年最新版】